Search Available Rentals

Available 10/01/25 Rent: $1,995.00


166 Nolen Road  | Community: Montgomery County | City: Christiansburg

Bedrooms

3 Beds

Bathrooms

2 Baths

Pet Policy

Pet Friendly

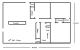
Three bedroom, two bath, single family home. Kitchen includes range/oven, refrigerator and dishwasher. Dining room. Living room. Laundry area with washer/dryer. Heat pump and electric baseboard heat in basement. Large porch. this is a smoke free property. Town water and private septic. Fenced in yard. 1-2 pets, 50 lbs or less, permitted with approval and deposit plus $25.00 monthly rent per pet. Residents will be responsible for all lawn care.

Appliance:

  • Refrigerator
  • Oven/Range
  • Dishwasher
  • Washer
  • Dryer

HVAC:

  • Central Air
  • Heat Pump
  • Electric Baseboard Heat

Included in Rent:

  • Sewer

Pet Policy:

  • Pet Friendly

Student Policy:

  • Students Welcomed

Zoning Policy:

  • None

Directions:

Christiansburt to Rt 114, Peppers Ferry Road passing New River Valley Mall - R on Nolen Rd - House is on the R after sharp L turn